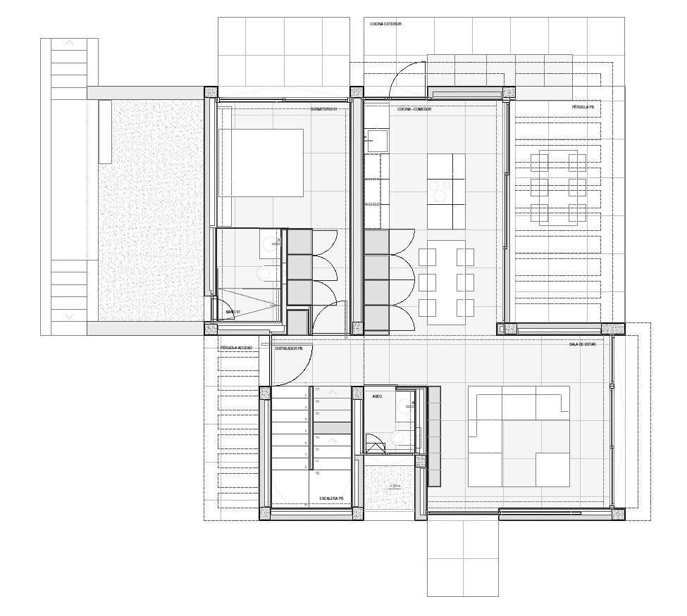
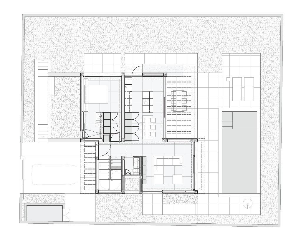
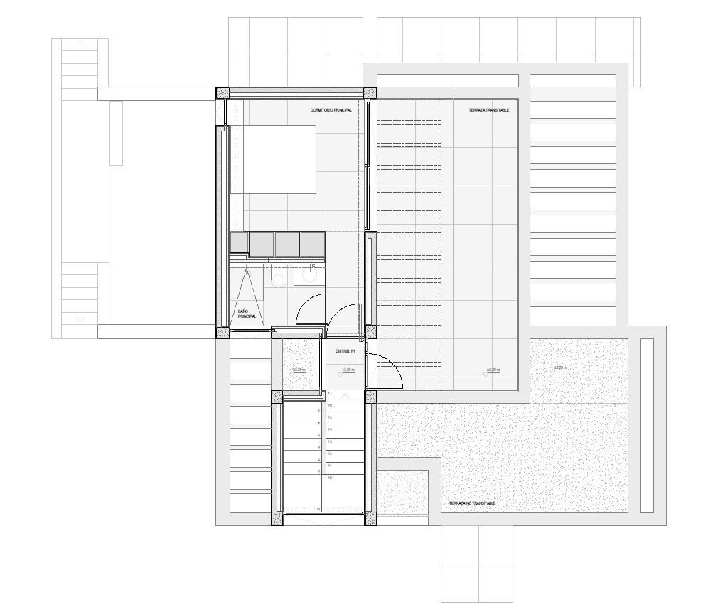
MODERNE NIEUWBOUW VILLA’S IN VILLAMARTIN Nieuwbouw villa’s met 2 modellen om uit te kiezen: 1 of 2 verdiepingen. Alle met 3 slaapkamers en 2 of 3 badkamers, privé zwembad, parkeerplaats op het perceel en privé solarium. Het perceel is rondom omheind met toegangspoorten voor voertuigen en voetgangers. De oppervlakte van het perceel is verdeeld tussen de parkeerplaats afgewerkt met bedrukt beton, een grasveld en een geplaveid gedeelte met dezelfde vloer als binnen. Het binnenschrijnwerk heeft een gepantserde toegangsdeur met hoge beveiliging. Zowel de binnendeuren als de kasten zijn wit gelakt. In de keuken vinden we meubels die zijn afgewerkt in wit en een kwartswerkblad in een kleur die overeenkomt met de vloer van het huis. In de badkamers zijn er douchebakken en geïntegreerde glazen schermen, evenals badkamermeubels en aan de muur bevestigd sanitair. De villa heeft pre-installaties voor airconditioning via leidingen. Deze fantastische woningen liggen vlakbij Villamartin Plaza en de golfbaan van Villamartin, waar je talloze bars en restaurants, supermarkten, banken, een taxistandplaats en de plaatselijke bushalte vindt. De stranden van Orihuela Costa liggen op slechts 5 minuten rijden, net als het nieuwe winkelcentrum Zenia Boulevard (het grootste winkelcentrum in de provincie Alicante). De luchthavens van Alicante en Murcia liggen op 45 minuten rijden. 504
Vul het onderstaande formulier in en we beantwoorden je vragen of nemen zo snel mogelijk contact met je op.